Rab-Palit - Apartment Marjetka 6+2

Palit 39, 51280 Rab, Kroatien

Nicht bewertet von 0 Bewertungen
0/5
0% der Gäste empfehlen

Anzahl der Betten

6

Schlafzimmer

3

Quadratur

110 m2

Standort

Palit

Beschreibung

Das Apartment befindet sich auf der Insel Rab, im Ort Palit, und ist geeignet für 6+3 Personen.

Die Wohnungen Perkic befinden sich in einem Einfamilienhaus in Meeres- und Strandnähe, in der touristische Siedlung Mali Palit auf der Insel RAB gelegen.
Wir bieten Ihnen zu allen Jahreszeiten einen angenehmen Urlaub und beste Erholung.
Wir stehen Ihnen gerne bei allen weiteren Fragen, die Ihren Aufenthalt betreffen, zur Verfügung.

Wohnungsbeschreibung:

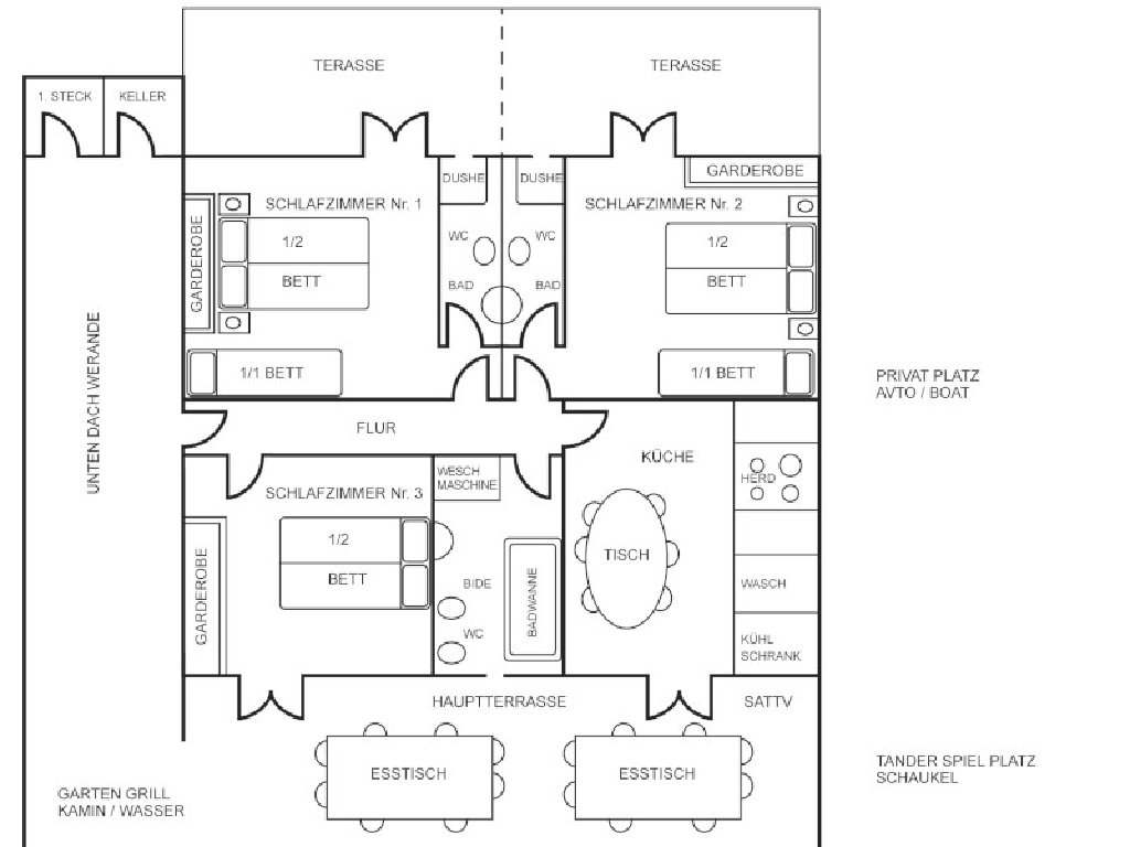
Die Wohnung - Marijeta befindet sich im Erdgeschoss des Hauses.
Die Unterkunft ist für Rollstuhlfahrer/Senioren /Kinder/barrierenfrei eingerichtet
( leicht zugängliche, keine Treppen/Stufen, mit breiten Türen), 1 Badzimmer - Toilette / WC und Badewanne mit Haltergriffe.
Überdachte Terrasse mit Markise, Grillterrasse, großer Garten.
Es besteht aus einer voll ausgestatteten Küche (Herd 2+2, Kühlschrank mit Gefrierfach, Mikrowelle, Kaffeemaschine, Spülmaschine, komplettes Geschirr und Besteck usw.), Esszimmer und 3 Schlafzimmer, jedes Zimmer hat ein eigenes Bad und Zugang zu einer großen Terrasse.

-Nr.1 - Schlafzimmer : Doppelbett, Bad mit WC, Bidet, Badewanne, ( Waschmaschine) und Terrasse.
-Nr.2 - Schlafzimmer : Doppelbett, Einzelbett, Bad mit Dusche, WC und Terrasse.
-Nr.3 - Schlafzimmer : Doppelbett, Schlafcouch für 1-2 Personen, Bad mit Dusche, WC und Terrasse.

Beide Wohnungen haben: digitales Fernsehen und Wireless Internet, Gerät zur Kühlung Wasser von hoher Qualität AQUA VIVA, Waschmaschine und Geschirrspüler.
Zur Verfügung der Gäste sind:
zwei Grillplätze, ein mit Kohle und ein Barbecue mit Gas, Spüle und Trinkwasser, Dusche im Freien, Sonnenschirme und Liegestühle. große und gut ausgestattete Terrasse für 20 Personen und ein Kinderspielplatz mit Schaukeln.
Ein schön angelegter Garten 1500 m² groß, mit Obstbäumen und mediterranen Pflanzen, durch einen Zaun umgeben, wo Ihre Kinder sicher spielen können.
Parkplätze für Autos und kleine Boote auf einem privaten Parkplatz des Hauses.

Reservierungen sind für jede Wohnung einzeln möglich bis max.9 Personen,oder
für beide Wohnungen als ganze Haus mit einer Kapazität von 12 + 6 Betten oder maximal bis zu 18 Personen.

In der Nähe unseres Hauses gibt es: Einkaufszentren, Sportzentrum mit 3 Tennisplätze, ein Boot mieten, mieten Sie ein Fahrrad oder Roller, Banken, Post, Fischmarkt, Restaurants und Bars und ein reichhaltiges touristisches Angebot.
Tourismuszentrum liegt nur 250 m. von unserem Haus entfernt (2 bis 10-minütigen Spaziergang).
Sie können die Sehenswürdigkeiten der Altstadt von Rab besichtigen, einen Spaziergang in der wunderschönen Naturpark Komrcar machen oder nutzen Sie den Ganztägigen Ausflug mit dem Boot / Tag mehr als 10 Programme / oder genießen Sie am Abend das reiche kulturelle / Unterhaltungsleben.
Die Insel Rab ist ein Paradiesischer Ort für Ihren Urlaub - ein Besuch auf Rab, und Sie möchten gerne wieder kommen.
Rab ist eine Insel mit kristallklarem Meer, mit mehr als 122 Stränden, Sonne, Schönheit, Liebe und Aufmerksamkeit.

Objekt - Haus LAGE:
Haus Perkic - Ferienwohnungen Marjeta und Tina
Am Insel RAB, ausserhalb des Zentrum, in der nähe der Stadt (200m ) in Touristische Ort Klein Palit, Bei Bruder Restaurant RIO mit sehr gute Küche-50m vom Haus entfernt, Post, Banken, in der nähe das Meer, Marine Hafen, Natur Park Komrcar, Sports Zentrum, Tennis, Market, Fischmarkt, Supermarkt, Wasser schöne Strände, Buchten und auch FKK Buchten.
Parkplätze: vor dem Haus und Boot anhänger, Abgeschlossener Garten
In dem großzügig angelegten und umzäunten Garten (2000 qm) mit Obstbäumen und mediterranen Pflanzen gibt es einen Kinderspielplatz mit Schaukeln sowie eine große und einladende Terrasse mit Gartenmöbeln, Sonnenschirmen, Liegestühlen, Sitzmöglichkeiten sowohl in der Sonne als im Schatten.
Zwei verschiedenen Grills (Holzkohle- und Gasgrill) und einem Außenspülbecken. Außendusche zur gemeinschaftlichen nutzung.
Auf der Terrasse befinden sich Sitzmöglichkeiten sowohl in der Sonne als auch im Schatten.
Unsere Gäste sollen sich von Beginn an wie zu Hause fühlen!

Herzlich Willkommen!

Ganzjährige Vermietung.

Unterkunftsarten

Apartment Apartment
3 Sterne 3 Sterne

Einrichtungen innerhalb der Anlage

Garten Garten
Parkplatz Parkplatz
Sonnenschirm Sonnenschirm
Sonnenliegen Sonnenliegen
Gartenmöbel Gartenmöbel
Grill Grill
Terrasse / Balkon Terrasse / Balkon
Kinderspielplatz Kinderspielplatz

Innenausstattung

Klimaanlage Klimaanlage
Geschirrspüler Geschirrspüler
Waschmaschine Waschmaschine
Kühlschrank Kühlschrank
Gefrierschrank Gefrierschrank
Fernsehen Fernsehen
Mikrowelle Mikrowelle
Mixer Mixer
Kaffeemaschine Kaffeemaschine
Toaster Toaster
Wasserkocher Wasserkocher
Wäschetrockner Wäschetrockner
Wi-Fi / Internet Wi-Fi / Internet
Behindertengerechter Zugang Behindertengerechter Zugang

Im preis inbegriffen

Bettwäsche Bettwäsche
Handtücher Handtücher
Internet Internet
Klimaanlage Klimaanlage
Parkplatz Parkplatz
Kurtaxe Kurtaxe

Geeignet für:

Kinder Kinder
Senioren oder Gebrechliche Senioren oder Gebrechliche
Rollstuhlgerecht Rollstuhlgerecht
Haustiere Haustiere
Raucher Raucher

FAQs

Anreise ab:
14:00
Abreise bis:
10:00
Welche Sprachen werden dort gesprochen?
hrvatski, english, deutsch, italiano, français, slovenski
Kann ich mein Haustier mitbringen?
Das mitbringen von Haustieren ist nur dann erlaubt wenn es unter "Eigenschaft: Geeignet für:" angegeben ist, oder nach Vereinbarung
Ist das Rauchen erlaubt?
Das Rauchen ist nur dann erlaubt wenn es unter "Eigenschaft: Geeignet für:" angegeben ist.

Was ist in der Nähe

In der Nähe
Strand (500m)
Bank / Bankautomat: (200m)
Restaurant (100m)
Wochenmarkt (200m)
Supermarkt (200m)
Konzum
Kinderspielplatz (300m)
Gesundheit
Apotheke (250m)
Arzt / Krankenhaus (300m)
Verkehr
Flughafen (70km)
Bahnhof (110km)
Rijeka
Fähre (10km)
Stinica
Tankstelle (350m)

Standort

Bewertungen

0/5
Nicht bewertet
Basierend auf 0 Bewertung
Ausgezeichnet
0
Sehr gut
0
Durchschnitt
0
Schlecht
0
Sehr schlecht
0
Keine Rezension
Sie müssen anmelden einloggen, um eine Rezension zu schreiben

Miljenko Perkić Verifiziert

Mitglied seit Nov 2025

ab 0,00 €

Extra Preise:

({{ type.price_type }})
{{ type.price_html }}

Rabatte:

{{ type.from }} - {{ type.to }} Nacht ab {{ type.from }} Nacht
- {{ formatMoney(type.total) }}
({{ type.price_type }})
{{ type.price }}%
{{ formatMoney(type.price) }}
  • {{ total_price_html }}
  • {{ pay_now_price_html }}

max. Gästezahl: 9

Jetzt Buchen Jetzt Buchen
ab
0,00 €
0 Bewertung